
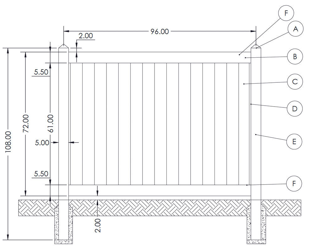
6' × 8' Gorilla Privacy (70")
Gorilla Pocket Rail
T&G
Post
#HVPP-01
| Key | QTY | Item Key | Description |
|---|---|---|---|
| A | 2 | C55PRYA | 5" × 5" Pyramid Cap |
| B | 2 | F37C | 1 ¾" × 5 ½" × 94" Gorilla Pocket Rail |
| C | 15 | F54G | ⅞" × 6" × 62 ¼" Gorilla T&G |
| D | 2 | F83U | ⅞" × 59" Trim Channel |
| E | 2 | F10E | 5" × 5" × 108" Co-Ex Utility Post |
| F | 1 | G3RFM147 | 1 ¾" × 94" Steel Insert |
Please refer to the appropriate guideline documents available on this app for proper installation.

6' × 8' Nexus Privacy (70")
Nexus Pocket Rail
T&G
Post
#HVPP-02
| Key | QTY | Item Key | Description |
|---|---|---|---|
| A | 2 | C55PRYA | 5" × 5" Pyramid Cap |
| B | 2 | F3P5 | 1 ¾" × 5 ½" × 94" Nexus Pocket Rail |
| C | 15 | F54G | ⅞" × 6" × 62 ¼" Gorilla T&G |
| D | 2 | F83U | ⅞" × 59" Trim Channel |
| E | 2 | F10E | 5" × 5" × 108" Co-Ex Utility Post |
| F | 1 | G3RFM147 | 1 ¾" × 94" Steel Insert |
Please refer to the appropriate guideline documents available on this app for proper installation.

6' × 8' Nexus Privacy w/lattice (70")
Nexus Pocket Rail
T&G
Lattice
Post
#HVLT-06
| Key | QTY | Item Key | Description |
|---|---|---|---|
| A | 2 | C55PRYA | 5" × 5" Pyramid Cap |
| B | 1 | LPRECUT | 12" × 96" Lattice Pannel |
| C | 2 | F89S | ¾" × 9 ½" Lattice Channel |
| D | 1 | F24E | 2" × 3 ½" × 94" Hollow Utility Rail |
| E | 2 | F83U | ⅞" × 46" Trim Channel |
| F | 2 | F3P5 | 1 ¾" × 5 ½" × 94" Nexus Pocket Rail |
| G | 15 | F54G | ⅞" × 6" × 49" Gorilla T&G |
| H | 2 | F10E | 5" × 5" × 108" Co-Ex Utility Post |
| I | 1 | G3RFM147 | 1 ¾" × 93" Steel Rail Insert In Bottom Rail |
Please refer to the appropriate guideline documents available on this app for proper installation.

6' × 6' Nexus Privacy w/lattice (70")
Nexus Pocket Rail
T&G
Lattice
Post
#HVLT-07
| Key | QTY | Item Key | Description |
|---|---|---|---|
| A | 2 | C55PRYA | 5" × 5" Pyramid Cap |
| B | 1 | LPRECUT | 12" × 67" Lattice Pannel |
| C | 2 | F89S | ¾" × 9 ½" Lattice Channel |
| D | 1 | F24E | 2" × 3 ½" × 70" Hollow Utility Rail |
| E | 2 | F83U | ⅞" × 46" Trim Channel |
| F | 2 | F3P5 | 1 ¾" × 5 ½" × 70" Nexus Pocket Rail |
| G | 15 | F54G | ⅞" × 6" × 49" Gorilla T&G |
| H | 2 | F10E | 5" × 5" × 108" Co-Ex Utility Post |
| I | 1 | G3RFM147 | 1 ¾" × 71" Steel Rail Insert In Bottom Rail |
Please refer to the appropriate guideline documents available on this app for proper installation.

6' × 8' Nexus Privacy (72")
Nexus Pocket Rail
T&G
Post
#HVPp-09
| Key | QTY | Item Key | Description |
|---|---|---|---|
| A | 2 | C55PRYA | 5" × 5" Pyramid Cap |
| B | 2 | F3P3 | 1 ¾" × 5 ½" × 94" Nexus Pocket Rail |
| C | 15 | F54G | ⅞" × 6" × 64 ½" Gorilla T&G |
| D | 2 | F83U | ⅞" × 61" Trim Channel |
| E | 2 | F10E | 5" × 5" × 108" Co-Ex Utility Post |
| F | 1 | G3RFM147 | 1 ¾" × 93" Steel Insert |
Please refer to the appropriate guideline documents available on this app for proper installation.

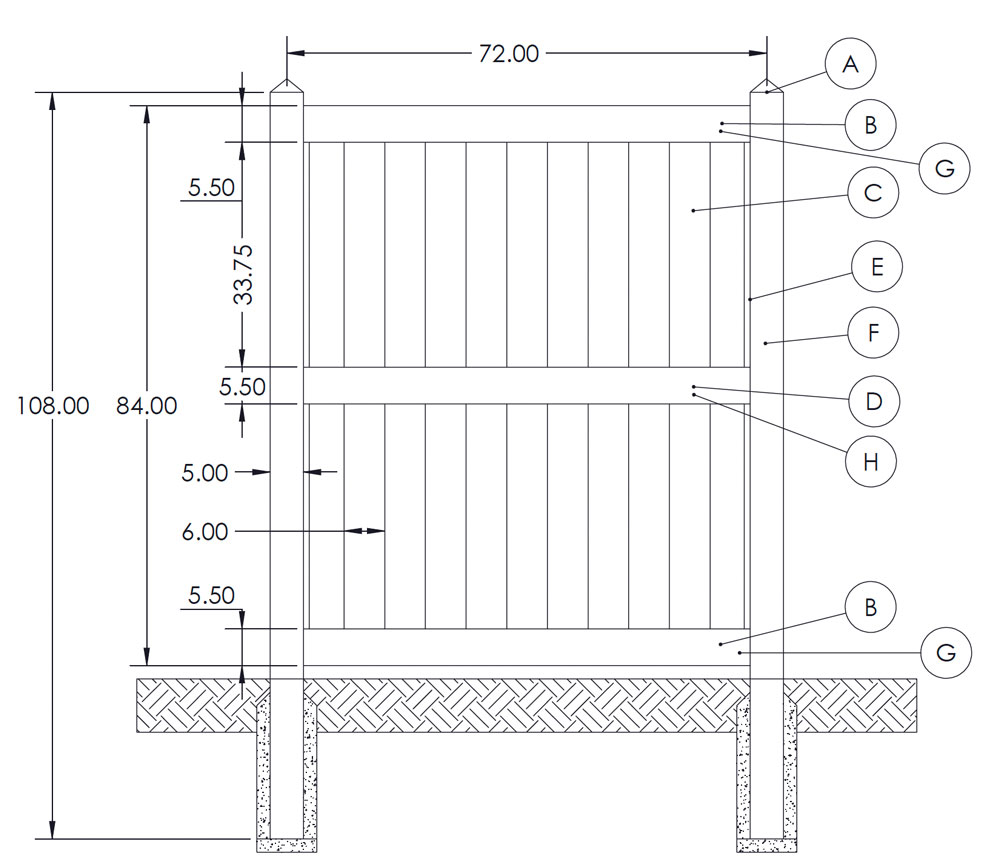
7' × 6' Gorilla Privacy w/mid-rail (84")
Gorilla Pocket Rail
T&G
Nexus Mid-Rail
Post
#HVPP-12
| Key | QTY | Item Key | Description |
|---|---|---|---|
| A | 2 | C55PRYA | 5" × 5" Pyramid Cap |
| B | 2 | F32G | 1 ½" × 5 ½" × 71 ½" Gorilla Pocket Rail |
| C | 22 | F54G | ⅞" × 6" × 33 ¾" Gorilla T&G |
| D | 1 | F3PM | 1 ¾" × 5 ½" Nexus Mid-Rail |
| E | 4 | F83U | ⅞" × 33 ¾" Trim Channel |
| F | 2 | F10E | ⁷⁄₅" × 5" × 108" Co-Ex Utility Post |
| G | 2 | G3RFH121 | 1 ½" × 71 ½" Steel Insert |
| H | 1 | G3RFM147 | 1 ¾" × 71 ½" Steel Insert |
Please refer to the appropriate guideline documents available on this app for proper installation.

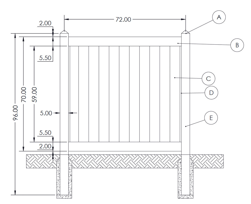
6' × 6' Gorilla Privacy (68")
Gorilla Pocket Rail
T&G
Post
#HVPp-13
| Key | QTY | Item Key | Description |
|---|---|---|---|
| A | 2 | C55PRYA | 5" × 5" Pyramid Cap |
| B | 2 | F3P1 | 1 ½" × 8" × 71 ½" Gorilla Pocket Rail |
| C | 11 | F54G | ⅞" × 6" × 55 ¼" Gorilla T&G |
| D | 2 | F83U | ⅞" × 52" Trim Channel |
| E | 2 | F10E | 5" × 5" × 108" Co-Ex Utility Post |
Please refer to the appropriate guideline documents available on this app for proper installation.

6' × 8' Nexus Privacy (72")
Nexus Pocket Rail
T&G
Post
#HVPp-15
| Key | QTY | Item Key | Description |
|---|---|---|---|
| A | 2 | C55PRYA | 5" × 5" Pyramid Cap |
| B | 2 | F3P5 | 2" × 7" × 94" Nexus Pocket Rail |
| C | 15 | F54G | ⅞" × 6" × 61" Gorilla T&G |
| D | 2 | F83U | ⅞" × 59" Trim Channel |
| E | 2 | F10E | 5" × 5" × 108" Co-Ex Utility Post |
| F | 1 | G3RFH148 | 2" × 93" Steel Insert |
Please refer to the appropriate guideline documents available on this app for proper installation.

6' × 6' gorilla Privacy (70")
Gorilla Pocket Rail
T&G
Post
#HVPp-18
| Key | QTY | Item Key | Description |
|---|---|---|---|
| A | 2 | C55PRYA | 5" × 5" Pyramid Cap |
| B | 2 | F32G | 1 ½" × 5 ½" × 71 ½" Gorilla Pocket Rail |
| C | 11 | F54G | ⅞" × 6" × 62 ¼" Gorilla T&G |
| D | 2 | F83U | ⅞" × 59" Trim Channel |
| E | 2 | F10E | 5" × 5" × 96" Co-Ex Utility Post |
Please refer to the appropriate guideline documents available on this app for proper installation.

6' × 8' Gorilla Privacy (70")
Gorilla Pocket Rail
T&G
Post
#HVPp-25
| Key | QTY | Item Key | Description |
|---|---|---|---|
| A | 2 | C55PRYA | 5" × 5" Pyramid Cap |
| B | 2 | F32G | 1 ½" × 5 ½" × 94" Gorilla Pocket Rail |
| C | 15 | F54G | ⅞" × 6" × 62 ¼" Gorilla T&G |
| D | 2 | F83U | ⅞" × 59" Trim Channel |
| E | 2 | F10E | 5" × 5" × 108" Co-Ex Utility Post |
| F | 1 | G3RFH148 | 1 ½" × 93" Steel Insert |
Please refer to the appropriate guideline documents available on this app for proper installation.

6' × 8' Gorilla Privacy (70")
Gorilla Pocket Rail
T&G
Post
#HVPp-26
| Key | QTY | Item Key | Description |
|---|---|---|---|
| A | 2 | C55PRYA | 5" × 5" Pyramid Cap |
| B | 2 | F32G | 1 ½" × 5 ½" × 94" Gorilla Pocket Rail |
| C | 15 | F54G | ⅞" × 6" × 62 ¼" Gorilla T&G |
| D | 2 | F83U | ⅞" × 59" Trim Channel |
| E | 2 | F10E | 5" × 5" × 96" Co-Ex Utility Post |
| F | 1 | G3RFH148 | 1 ½" × 93" Steel Insert |
Please refer to the appropriate guideline documents available on this app for proper installation.

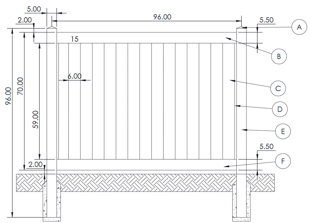
4' × 8' Sun Privacy (46")
Sun Pocket Rail
T&G
Post
#HVPp-28
| Key | QTY | Item Key | Description |
|---|---|---|---|
| A | 2 | C55PRYA | 5" × 5" Pyramid Cap |
| B | 2 | FFS7 | 2" × 7" × 94" Sun Pocket Rail |
| C | 15 | F54G | ⅞" × 6" × 35 ½" Gorilla T&G |
| D | 2 | F83U | ⅞" × 32" Trim Channel |
| E | 2 | F10E | 5" × 5" × 84" Co-Ex Utility Post |
| F | 1 | G3RFH148 | 2" × 93" Steel Insert |
Please refer to the appropriate guideline documents available on this app for proper installation.

6' × 8' Gorilla Privacy (68")
Sun Pocket Rail
T&G
Post
#HVPp-30
| Key | QTY | Item Key | Description |
|---|---|---|---|
| A | 2 | C55PRYA | 5" × 5" Pyramid Cap |
| B | 2 | F32G | 1 ½" × 5 ½" × 94" Gorilla Pocket Rail |
| C | 15 | F54G | ⅞" × 6" × 60 ¼" Gorilla T&G |
| D | 2 | F83U | ⅞" × 57" Trim Channel |
| E | 2 | F10E | 5" × 5" × 96" Co-Ex Utility Post |
| F | 1 | G3RFH121 | 1 ½" × 93" Steel Insert |
Please refer to the appropriate guideline documents available on this app for proper installation.

8' × 6' Gorilla Privacy w/mid-rail (94")
Gorilla Pocket Rail
T&G
Nexus Mid-Rail
Post
#HVPP-34
| Key | QTY | Item Key | Description |
|---|---|---|---|
| A | 2 | C55PRYA | 5" × 5" Pyramid Cap |
| B | 2 | F32G | 1 ½" × 5 ½" × 70" Gorilla Pocket Rail |
| C | 22 | F54G | ⅞" × 6" × 41 ½" Gorilla T&G |
| D | 4 | F83U | ⅞" × 37 ¾" Trim Channel |
| E | 2 | F10E | ⁷⁄₅" × 5" × 132" Co-Ex Utility Post |
| F | 2 | G3RFH121 | 1 ½" × 71" Steel Insert |
| G | 1 | G3RFM147 | 1 ¾" × 71" Steel Insert |
| H | 1 | F3PM | 1 ¾" × 5 ½" × 70" Nexus Mid-Rail |
Please refer to the appropriate guideline documents available on this app for proper installation.

8' × 6' Sun Privacy (94")
Sun Pocket Rail
T&G
Post
#HVPp-36
| Key | QTY | Item Key | Description |
|---|---|---|---|
| A | 2 | C55PRYA | 5" × 5" Pyramid Cap |
| B | 2 | FFS7 | 2" × 7" × 71" Sun Pocket Rail |
| C | 11 | F54G | ⅞" × 6" × 81" Gorilla T&G |
| D | 2 | F83U | ⅞" × 78" Trim Channel |
| E | 2 | F10E | 5" × 5" × 120" Co-Ex Utility Post |
| F | 1 | G3RFH148 | 2" × 71" Steel Insert |
Please refer to the appropriate guideline documents available on this app for proper installation.

6' × 6' Nexus Privacy w/mid-rail (68")
Nexus Pocket Rail
T&G
Nexus Mid-Rail
Post
#HVPP-37
| Key | QTY | Item Key | Description |
|---|---|---|---|
| A | 2 | C55PRYA | 5" × 5" Pyramid Cap |
| B | 2 | F3P5 | 1 ¾" × 5 ½" × 70" Nexus Pocket Rail |
| C | 22 | F54G | ⅞" × 6" × 28 ½" Gorilla T&G |
| D | 4 | F83U | ⅞" × 25 ¾" Trim Channel |
| E | 2 | F10E | ⁷⁄₅" × 5" × 96" Co-Ex Utility Post |
| F | 2 | G3RFM147 | 1 ¾" × 71" Steel Insert (Top & Bottom) |
| G | 1 | F3PM | 1 ¾" × 5 ½" × 71" Nexus Mid-Rail |
Please refer to the appropriate guideline documents available on this app for proper installation.

6' × 8' Nexus Privacy (70")
Nexus Pocket Rail
T&G
Post
#HVPp-43
| Key | QTY | Item Key | Description |
|---|---|---|---|
| A | 2 | C55PRYA | 5" × 5" Pyramid Cap |
| B | 2 | F3P2 | 2" × 7" × 94" Nexus Pocket Rail |
| C | 15 | F54G | ⅞" × 6" × 59 ½" Gorilla T&G |
| D | 2 | F83U | ⅞" × 56" Trim Channel |
| E | 2 | F10E | 5" × 5" × 96" Co-Ex Utility Post |
| F | 1 | G3RFH148 | 2" × 93" Steel Insert |
Please refer to the appropriate guideline documents available on this app for proper installation.

4' × 6' Gorilla Privacy (46")
Gorilla Pocket Rail
T&G
Post
#HVPp-44
| Key | QTY | Item Key | Description |
|---|---|---|---|
| A | 2 | C55PRYA | 5" × 5" Pyramid Cap |
| B | 2 | F37C | 1 ¾" × 5 ½" × 70" Gorilla Pocket Rail |
| C | 11 | F54G | ⅞" × 6" × 38 ¼" Gorilla T&G |
| D | 2 | F83U | ⅞" × 59 ¼" Trim Channel |
| E | 2 | F10E | 5" × 5" × 70" Co-Ex Utility Post |
| F | 1 | G3RFM147 | 1 ¾" × 70" Steel Insert |
Please refer to the appropriate guideline documents available on this app for proper installation.

6' × 8' Gorilla Privacy (70")
Gorilla Pocket Rail
T&G
Post
#HVPp-45
| Key | QTY | Item Key | Description |
|---|---|---|---|
| A | 2 | C55PRYA | 5" × 5" Pyramid Cap |
| B | 2 | F3P1 | 1 ½" × 8" × 94" Gorilla Pocket Rail |
| C | 15 | F54G | ⅞" × 6" × 57 ½" Gorilla T&G |
| D | 2 | F83S | ⅞" × 59 ¼" U-Channel |
| E | 2 | F10E | 5" × 5" × 96" Co-Ex Utility Post |
| F | 1 | G3RFH121 | 1 ½" × 93" Steel Insert |
Please refer to the appropriate guideline documents available on this app for proper installation.

6' × 8' Hometown Privacy (70")
Hometown Pocket Rail
T&G
Post
#HVPp-46
| Key | QTY | Item Key | Description |
|---|---|---|---|
| A | 2 | C55PRYA | 5" × 5" Pyramid Cap |
| B | 2 | F3HT | 2" × 7" × 94" Hometown Pocket Rail |
| C | 15 | F54G | ⅞" × 6" × 59 ½" Gorilla T&G |
| D | 2 | F83S | ⅞" × 56" U-Channel |
| E | 2 | F10E | 5" × 5" × 108" Co-Ex Utility Post |
| F | 1 | G3RFH148 | 2" × 93" Steel Insert |
Please refer to the appropriate guideline documents available on this app for proper installation.

6' × 8' Gorilla Privacy (68")
Gorilla Pocket Rail
T&G
Post
#HVPp-47
| Key | QTY | Item Key | Description |
|---|---|---|---|
| A | 2 | C55PRYA | 5" × 5" Pyramid Cap |
| B | 2 | F3P1 | 1 ½" × 8" × 94" Gorilla Pocket Rail |
| C | 15 | F54G | ⅞" × 6" × 55 ¼" Gorilla T&G |
| D | 2 | F83S | ⅞" × 52" U-Channel |
| E | 2 | F10E | 5" × 5" × 96" Co-Ex Utility Post |
| F | 1 | G3RFH121 | 1 ½" × 93" Steel Insert |
Please refer to the appropriate guideline documents available on this app for proper installation.

6' × 8' Hometown Privacy (72")
Hometown Pocket Rail
T&G
Post
#HVPp-49
| Key | QTY | Item Key | Description |
|---|---|---|---|
| A | 2 | C55PRYA | 5" × 5" Pyramid Cap |
| B | 2 | F3HT | 2" × 7" × 94" Gorilla Pocket Rail |
| C | 15 | F54G | ⅞" × 6" × 61" Gorilla T&G |
| D | 2 | F83S | ⅞" × 58" U-Channel |
| E | 2 | F10E | 5" × 5" × 108" Co-Ex Utility Post |
| F | 1 | G3RFH148 | 2" × 93" Steel Insert |
Please refer to the appropriate guideline documents available on this app for proper installation.

8' × 6' Gorilla Privacy w/mid-rail (94")
Gorilla Pocket Rail
T&G
Nexus Mid-Rail
Post
#HVPP-50
| Key | QTY | Item Key | Description |
|---|---|---|---|
| A | 2 | C55PRYA | 5" × 5" Pyramid Cap |
| B | 2 | F37C | 1 ¾" × 5 ½" × 70" Gorilla Pocket Rail |
| C | 22 | F54G | ⅞" × 6" × 41 ½" Gorilla T&G |
| D | 4 | F83U | ⅞" × ³⁸ ⁵⁄₈" Trim Channel |
| E | 2 | F10E | 5" × 5" × 144" Co-Ex Utility Post |
| F | 3 | G3RFM147 | 1 ¾" × 70" Steel Insert |
| G | 1 | F3PM | 1 ¾" × 5 ½" × 70" Nexus Mid-Rail |
Please refer to the appropriate guideline documents available on this app for proper installation.

6' × 8' Nexus Privacy (70")
Nexus Pocket Rail
T&G
Post
#HVPp-59
| Key | QTY | Item Key | Description |
|---|---|---|---|
| A | 2 | C55PRYA | 5" × 5" Pyramid Cap |
| B | 2 | F3P2 | 2" × 7" × 94" Nexus Pocket Rail |
| C | 15 | F54G | ⅞" × 6" × 59 ½" Gorilla T&G |
| D | 2 | F83U | ⅞" × 56" Trim Channel |
| E | 2 | F10E | 5" × 5" × 108" Co-Ex Utility Post |
| F | 1 | G3RFH148 | 2" × 93" Steel Insert |
Please refer to the appropriate guideline documents available on this app for proper installation.

6' × 6' Nexus Privacy (70")
Nexus Pocket Rail
T&G
Post
#HVPp-60
| Key | QTY | Item Key | Description |
|---|---|---|---|
| A | 2 | C55PRYA | 5" × 5" Pyramid Cap |
| B | 2 | F3P2 | 2" × 7" × 70" Nexus Pocket Rail |
| C | 11 | F54G | ⅞" × 6" × 59 ½" Gorilla T&G |
| D | 2 | F83U | ⅞" × 56" Trim Channel |
| E | 2 | F10E | 5" × 5" × 108" Co-Ex Utility Post |
| F | 1 | G3RFH148 | 2" × 93" Steel Insert |
Please refer to the appropriate guideline documents available on this app for proper installation.